top of page

Business details
事業内容
弊社は、建物の構造に関する分野を専門とする会社であります。
意匠・設備事務所と協力し、安全で経済的な建物をお客様のニーズにあわせ実現しております。
01
構造設計
建物全体の構造計画、基本設計、実施設計、構造図の作成、確認審査対応までをお客様のご要望にあわせ責任を持って対応しております。
構造解析ソフトには、操作性、視認性に優れたSuper Build/SS7を、構造図の作図には、Autodesk製のAutoCADを使用しております。
<SS7 入力例>

02
工事監理
構造設計に関わった物件ついて、お客様のご要望により工事監理から製品検査までを行っております。
設計者が直接監理することによって、設計図書の意図が正確に施工に反映されます。
<配筋検査の例>




03
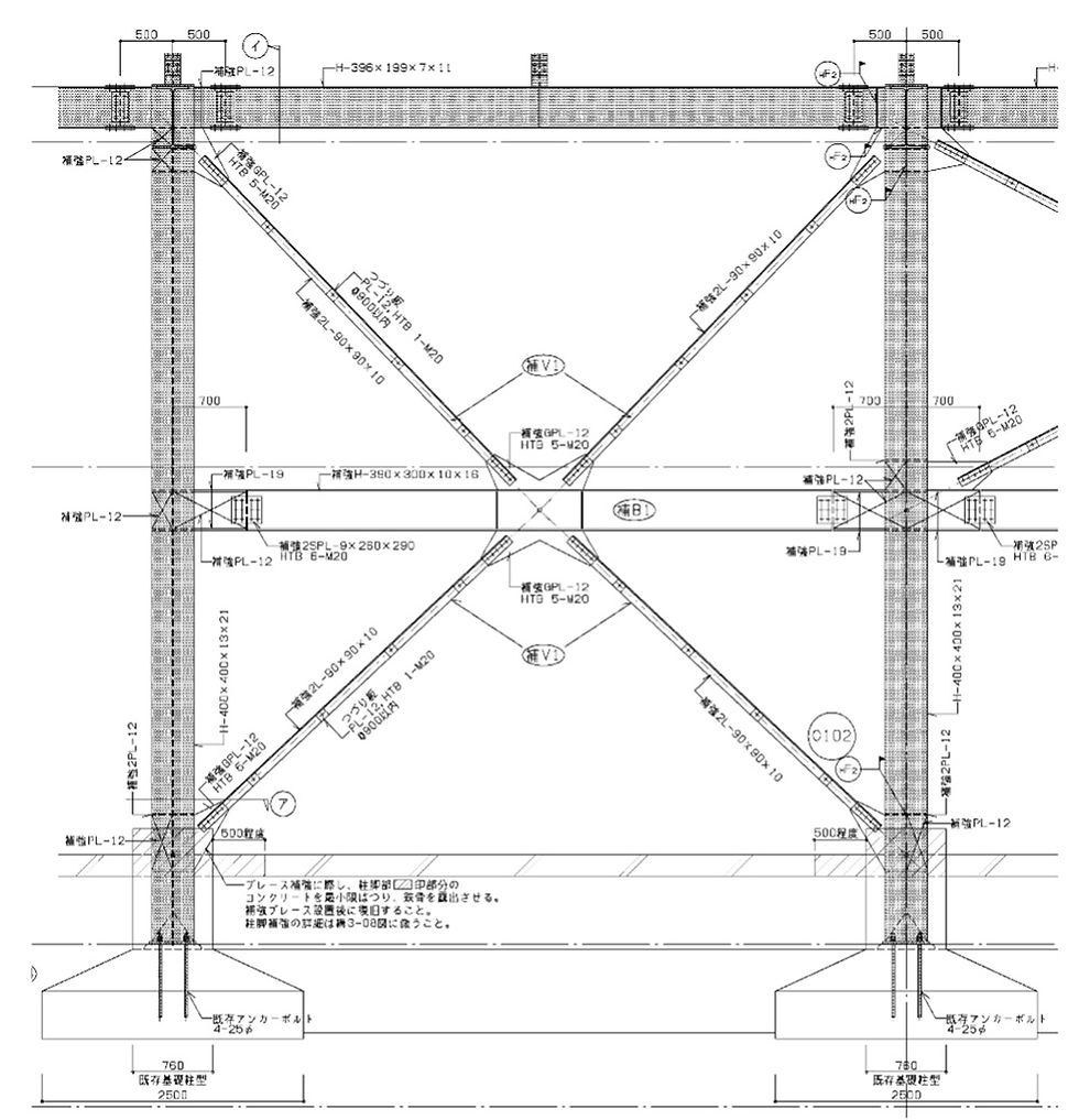
耐震診断
建物の長寿命化により、耐震診断のニーズはまだまだあります。
弊社では、使用状況に配慮し最善の補強案の提案を行っております。
<補強例>


bottom of page